/
Data Last Updated: 04/30/2026 12:58 PT
$635,960
81days on marketSold$635,960 · March 11, 2026
Send a showing request for 203 N 89th LOOP #240, Ridgefield, WA, 98642.
Hand-routed to Nate Brantley, Principal Broker & Founder. Same-day reply during business hours.
Sign in once with your email to send this showing request and keep spam out of the lead system.
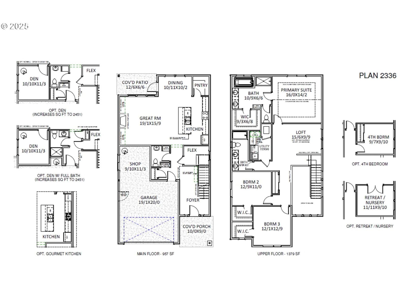
Set in Greely Farms, this home sits in Ridgefield. The home was built in 2025, set into the rhythm of the neighborhood.
MOVE-IN READY! Beautiful new floor plan with tall ceilings and lots of windows in the entry way, a great room concept, dining nook, fireplace, and flex space on the main floor, a primary suite with soaking tub, and three additional bedrooms, on the second level. Home features a 2-car garage with added shop space, gas fireplace, 9ft ceilings on main, quartz countertops throughout, gas range, high-efficiency heat pump with A/C, and a 65 gallon heat pump water heater. Fencing, covered patio, front yard sod and irrigation included. Community features walking trails, green spaces, and park areas. Sample images - actual finishes and colors will vary.
Extras & features
Built-In Range, Cooktop, Dishwasher, Microwave
Legal description
Greely Farms Phase 2C Lot 240
Building amenities
Walk Score data provided by Walk Score®