/
Data Last Updated: 04/30/2026 13:42 PT
$459,900
156days on marketSold$477,400 · March 12, 2026
Send a showing request for 11356 NW 321st AVE, North Plains, OR, 97133.
Hand-routed to Nate Brantley, Principal Broker & Founder. Same-day reply during business hours.
Sign in once with your email to send this showing request and keep spam out of the lead system.
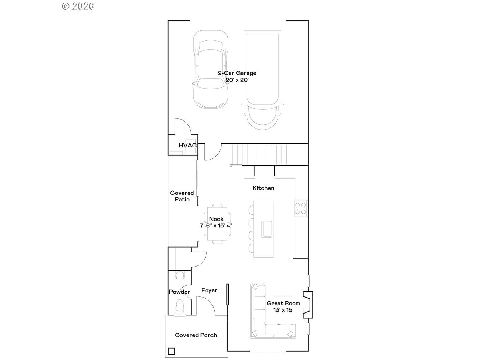
Set in LENNAR AT BRYNHILL, this home sits in North Plains. The home was built in 2025, set into the rhythm of the neighborhood.
Welcome to Brynhill by Lennar and the Chambrey floorplan in beautiful North Plains. Multitasking and entertaining is made simple in this two-story 3 bedroom, 2.5 bath single-family home. An open floorplan is shared between the great room, kitchen and nook on the first level of the home. Sliding glass doors behind the nook lead to the outdoor space. All three bedrooms are located upstairs, including the primary suite with an en-suite bath featuring double vanities with separate bath and shower plus a spacious walk-in closet. The two secondary bedrooms share a convenient Jack-and-Jill style bathroom in between them. Interior highlights include quartz countertops, shaker-style cabinets, LVP flooring in kitchen/entry way, LVT flooring in baths, a cozy fireplace in the great room and much more. This home also includes central air conditioning, a refrigerator, washer and dryer, and blinds—all at no extra cost! This brand new community is loaded with amenities including multiple onsite parks featuring pickleball, basketball, a putting green, a cornhole area, playgrounds, and picnic areas. Move in ready! Homesite 447. Flex credit/closing cost incentive available when financing with preferred lender! Use towards rate buydown and closing costs. Photos are of actual home.
Extras & features
Gas Water Heater, Washer, Dryer, Dishwasher, ENERGY STAR Qualified Appliances, Free-Standing Gas Range, Free-Standing Refrigerator
Legal description
LENNAR BRYNHILL CHAMBREY ENGLISH HOMESITE 447
Building amenities
Walk Score® data provided by Walk Score